摘 要:本发明公开的整骨式黄红麻剥皮机包括动力,传动机构,喂入折秆机构,夹持牵引分离机构,伸缩放麻架。喂入折秆机构设置在整机的正前上方,由折秆支座和设置在折秆支座前上方的摆动体,转动体及安全罩组成,折秆支座的前斜面与转动体的喂折盘构成定位喂入的V形口,喂折盘位于斜立板和侧立板之间,摆动体的破秆刀对准麻秆轴线,破秆刀上的折秆刀位于中立板和斜立板之间。夹持牵引分离机构位于喂入折秆机构的下后边,由上下夹持牵引体和前端两侧的前后挡麻杆组成,夹持带一正一反上下偶合,传动机构分动箱的两根输出轴分别驱动喂入轴、下夹持带和上夹持带。实现麻秆横向中间喂入,皮骨分离,适用于黄红麻整骨式剥皮,生产效率高,动力消耗少。
技术要点
1 .整骨式黄红麻剥皮机由动力,传动机构,喂入折秆机构,夹持牵引分离机构,机架等组成,其特征在于所述的喂入折秆机构位于整机正前上方,折秆支座的前斜面与喂入喂折盘的后缘形成麻秆定位喂入V形口,破秆刀正对麻秆轴心,所述的夹持牵引分离机构设置在喂入折秆机构的下后面,前后挡麻杆设置在上下夹持牵引体前端的左右两侧,夹持带为双面楔带,上下夹持带一正一反相互偶合。
2 .根据权利要求1所述的整骨式黄红麻剥皮机,其特征是:喂入折秆机构包括折秆支座,摆动体和转动体,摆动体破秆刀中间开口,两侧装有折秆刀和压展板,折秆刀位于折秆支座中立板和斜立板的前上方,与破秆刀刚性安装,压展板对准斜立板,与破秆刀弹性安装,转动体两侧的喂入盘和喂折盘拨齿工作边在同一轴向平面,与凸轮对称中心的夹角 90°。
3 .根据权利要求1所述的整骨式黄红麻剥皮机,其特征是:夹持牵引分离机构上下夹持牵引体的轮轴错位半个轴距,上夹持带前后驱动,向后伸出,下带由喂入轴上的驱动轮驱动。
技术领域
本发明涉及一种农副产品收获加工机械,特别是一种用于黄红麻皮骨分离的机械设备。
背景技术
黄红麻是一种特殊的纤维资源,有着广泛的用途。但剥制劳动强度大,费工费时,手工剥皮每人每天仅能剥鲜皮50-100公斤,制约了生产的发展。
20世纪50年代中期我国即开始进行黄红麻动力剥皮机的研制工作,80年代我国曾研制出碎骨式和整骨式两种类型的黄红麻剥皮机,但由于剥皮工效不高或剥制质量较差,未能在生产上广泛推广应用。相比之下,碎骨式操作较简单,效率较高,因而普遍认为碎骨式前景较好,整骨式难以实现机械化。
《6HZB-150型黄红麻整骨剥皮机》(见中国麻业1983年01期)采用胶辊抽皮的方法,由机架,打击辊筒,胶辊、滑板,输送带,喂入罩壳、传动等七个部分组成,每小时剥鲜皮150-250kg,操作复杂,效率低,麻皮紊乱。
近年来由中国农业科学院麻类研究所研制的《4HB-480型黄红麻剥皮机》(见中国农机化2010年第5期或ZL201120011151.9),通过大小压辊的碾压分离和剥皮滚筒的刮打去掉麻骨、叶、屑等,虽然生产效率较高,(达到700kg/h),但麻骨被粉碎,鲜皮含骨率较高(11.691%)。
由此可见,研制出高效的整骨式剥皮机,将是突破性的技术进步。
发明内容
本发明的目的是:满足用户的需要,解决黄红麻生产中的剥制难题,克服上述机械的缺陷,提供一种操作轻便容易,剥制质量好,生产效率高的整骨式剥皮机,以利麻皮、麻骨得更好利用。
本发明得技术方案是:整骨式黄红麻剥皮机,包括机架、动力、传动机构、喂入折秆机构,夹持牵引分离机构,放麻平台及伸缩放麻架。所述的喂入折秆机构设置在机器的正前上方,折秆支座的前斜面与喂入喂折盘的后缘形成麻秆定位喂入V形口,破秆刀刀刃对准麻秆轴心,两侧装有折秆刀和压展板,左右喂入喂折盘的拔齿工作边在同一轴向平面,且与凸轮对称中心的夹角为90°;所述的夹持牵引分离机构设置在喂入折秆机构的下后面,前后挡麻杆设置在上下夹持牵引体前端的左右两侧,上下夹持体均由传动轮,压(托)带轮,牵引带和夹持架组成,夹持带为双面楔带,断面为W形,纵向中间三角形契断续结构,形成矩形齿,上下带一正一反相互偶合;所述的动力及传动机构的减速分动箱设置在机器的右下部,减速分动箱的两输出轴转速相同,转向相反,一轴驱动喂入轴和下夹持牵引带,一轴驱动上夹持牵引带。
整机工作过程是:工作前根据麻秆的长度拉开左右伸缩放麻架,将麻秆理顺居中铺放在带伸缩放麻架的放麻平台上,启动机器后,将麻秆依次铺开,使前排的麻秆接触喂折圆盘,破秆刀将麻秆从中间向两边剖开,破秆刀两边的麻秆压展板将麻秆展开,折秆刀将展开的麻秆折断,喂折圆盘的拔齿将剖开折碎的麻秆向下压折使中部皮骨分离,两侧麻骨从麻皮中露出,与绕喂入轴的夹持带一起使麻皮进入上下夹持牵引体夹持往后拉,两侧的前后挡麻杆给麻秆定位导向,使麻骨从上夹持体的前端向左右两侧梭出,麻皮向后拉出后放置在机座底板上,完成皮骨分离。
进一步地,所述的喂入折秆机构由折秆支座、摆动体、转动体和安全罩组成,折秆支座位于摆动体和转动体的后方,包括侧立板、斜立板和中立板,前斜边与转动体的喂入喂折盘形成麻秆定位的V形口,侧立板的前下角与夹持牵引分离机构的后挡麻杆的顶端衔接; 摆动体包括破秆刀、折秆刀、压展板、摇杆、复位弹簧,破秆刀对准麻秆轴心,折秆刀置于下后方折秆支座中立板和斜立板之间的上前方,固定在破秆刀上,压展板对准斜立板,弹性安装在破秆刀的两侧,破秆刀由凸轮摇杆机构驱动间歇往复运动,弹簧复位;转动体包括喂入轴、和固定在喂入轴上的下带传动轮,凸轮、喂折盘和喂入盘,喂折盘置于后面折秆支座斜立板的外侧,喂入盘置于侧立板的外侧,喂入盘略小于喂折盘,左右喂入盘、喂折盘拨齿的工作边在同一轴向平面,且与凸轮对称中心的夹角为90°;安全罩是遮盖摆动体和转动体前半部的半圆筒。
喂入折秆机构的作用是依次将麻秆中部折碎、麻骨分离,使两端的麻骨露出麻皮后送入夹持牵引分离机构进行剥皮,完成横向喂入。
进一步地,所述的夹持牵引分离机构由上下夹持牵引体和设置在上下夹持牵引体前端左右两侧的前后挡麻杆组成。后挡麻杆位于前挡麻杆的内侧,麻秆被前后挡麻杆卡住时,内端前倾,后挡麻杆的顶端与喂入折秆支座侧立板的前下角衔接,前挡麻杆顶端高出放麻平台,上下夹持体均由夹持架,传动轮、托压带轮、夹持带组成,上下夹持体的传动轮,托压带轮相互错开半个轴距,上带尾端伸出,通过中间轮轴前后驱动,下带首端绕喂入轴,由喂入轴驱动,夹持架两侧无轴头伸出,便于麻皮卸落。夹持带为双面锲形带,断面为W形,中间三角形纵向楔齿的上半部为断续结构,形成矩形锯齿状,上下夹持带一正一反相互偶合,麻皮夹挂在两带之间,下带矩形锯齿面为外侧,带轮轮槽根据夹持带断面设计上带轮为M 型,下带轮为W型。
夹持牵引分离机构的作用是夹挂麻秆中间的麻皮往后拉,两侧麻秆上的麻皮绕后挡麻杆与麻骨分离,麻骨从前两侧梭出,麻皮拉出后端后放置在机座底板上,完成皮骨分离。
进一步地,所述的传动机构由皮带调速传动,减速分动箱,喂入轴及下夹持带链传动,上夹持带中间链传动,上夹持带前后链传动组成。动力通过三角带传动到减速分动箱,通过减速分动箱到输出轴,减速分动箱的两根输出轴速度相同,方向相反,一轴直接驱动喂入轴和下夹持带,一轴通过中间轴驱动上夹持带。
所述的机架是用型材焊接的框架,由横梁,纵梁,立柱及动力、减速分动箱安装座等组成。
所述的伸缩放麻架是从左右两侧插入机架的两个门形架子,以缩小机器的外形尺寸。
本发明的有益效果是:
1、将麻秆分成梢部基部两半同时剥皮,缩小了机器的总体结构。
2、利用麻皮韧性好抗拉能力强,皮骨靠形成层结合易剥离的机械力学性质进行整骨式剥皮,降低了动力消耗。
3、无高速旋转的工作部件,噪音低。
4、麻骨完整,麻皮不含碎骨,提高了麻皮质量,且有利麻骨利用。
5、横向喂入连续剥制,提高了剥皮效率,操作轻便,机械化程度高,可与割麻机配套实现联合收获,改变了人们整骨式难以机械化的认识。
附图说明
图1是整机主视(侧立面)示意图,图2是整机俯视示意图,图3是整机左视(正立面) 示意图。
图4是喂入折秆机构主视(侧立面剖视)示意图,图5是喂入折秆机构的俯视图。
图6是喂入折秆机构折秆支座主视(侧立面剖视图),图7是折秆支座俯视图,图8 是喂入折秆机构摆动体主视(侧立面剖视)图,图9是摆动体俯视图,图10是喂入折秆机构转动体主视图,图11是转动体A-A剖视图,图12是动力及传动机构示意图,图13是夹持牵引分离机构主视(侧立面)示意图,图14是夹持牵引分离机构俯视(平面布置)示意图。
图15是夹持牵引分离机构夹持带主视(纵向侧立面)图,图16是夹持带A-A剖视(放大)图。
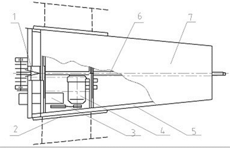
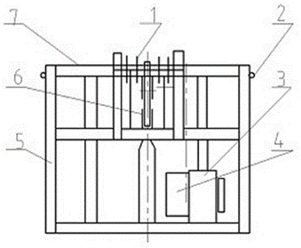
图中1为喂入拆秆机构,2为伸缩放麻架,3为传动机构,4为动力(电动机),5为机架,6为夹持牵引分离机构,7放麻平台。
1.1为折秆支座,1.2为摆动机构,1.3为转动体,1.4为安全罩;1.1.1折秆支座侧立板,1.1.2斜立板,1.1.3中立板,1.1.4底板,1.1.5后立板;1.2.1摆动体安装底板,1.2.2侧立板下联接板,1.2.3侧立板,1.2.4折秆刀,1.2.5压展板,1.2.6复位弹簧,1.2.7侧立板上联接板,1.2.8破秆刀,1.2.9滑槽板,1.2.10摇杆,1.2.11摇杆联接板,1.2.12销轴,1.2.13开口销;1.3.1转动体喂入轴,1.3.2凸轮,1.3.3下带传动轮,1.3.4喂折盘,1.3.5喂入盘;3.1喂入轴及下夹持带链传动,3.2减速分动箱,3.3上夹带中间链传,3.4上夹带前后链传动,3.5皮带传动;6.1前挡麻杆,6.2后挡麻杆,6.3下夹持牵引体,6. 4上夹持牵引体。
具体实施方式
下面结合附图对本发明作进一步的说明:
整机如图1、图2、图3所示,由喂入折秆机构1,伸缩放麻架2,传动机构3,动力(选用电动机)4,机架5,夹持牵引分离机构6,放麻平台7组成。喂入折秆机构1设置在机器的正前上方,夹持牵引分离机构6位于喂入折秆机构1的下后面,动力(电动机)4及传动机构3的减速分箱 3.2位于机器的右下方。喂入折秆机构将麻秆中部剖开、折碎、分离、两端露出麻骨送入夹持牵引分离机构6,上夹持牵引体6.4和下夹持牵引体6.3夹持麻皮往后拉出,左右两侧的前挡麻杆6 .1和后挡麻杆6.2定位导向麻骨梭放在机器前端的左右两侧。
喂入折秆机构1如图4、图5所示,由折秆支座1.1,摆动体1.2,转动体1.3和安全罩 1.4组成。折秆支座1.1如图6、图7所示,包括侧立板1.1.1,斜立板1.1.2,中立板1.1.3,侧立板1.1.1的前斜边较陡,前下角与夹持牵引分离机构6的后端挡麻杆6.2衔接,斜立板1.1.2 的前斜边较长与转动体1.3的喂折盘交叉重叠,中立板1.1.3斜边做有麻秆定位窝。摆动体1.2如图8、图9所示,破秆刀1.2 .8刀口对准麻秆轴线,中间开口破秆时越过中立板1.1.3,折秆刀1.2.4位于中立板1.1.3和斜立板1.1.2之间的上前方,固定在破秆刀1.2.8上,压展板1.2.5对准斜立板1.1.2,弹性安装在破秆刀的两侧,转动体1.3如图10、图11所示,喂折盘1.3.4位于斜立板1.1.2的外侧,喂入盘1.3.5位于侧立板1.1.1的外侧,略小于喂折盘1.3.4,左右两侧的喂入盘1.3.5喂折盘1.3.4拨齿的工作边在同一轴的平面,高度根据麻秆直径确定,与凸轮对称中心的夹角为90°,后缘与折麻支座1 .1前斜边形成V形麻秆定位喂入口。安全罩1.4是个半圆筒。
伸缩放麻架2是置于机器上前方放麻平板7下的两个门形架子,工作时根据麻秆的长度向外拉出。
动力4及转动机构3如图12所示,选用普通电动机作动力。传动机构包括皮带传动3.5,减速分动箱3.2,以及喂入轴及下夹持带链传动3.1,上夹持带中间链传动3.3和上夹持带前后链传动3.4。减速分动箱3.2为齿轮减速反向。两根输出轴转速相同,转向相反,以满足喂入折秆机构转动体1.3,夹持牵引分离6上下夹持带转速及转向的要求。
机架5是用型材焊接而成的架子,框架结构,为了缩小机器外形尺寸,减少材料消耗,便于转移运输,平面布置成梯形,前宽1000左右,后宽300左右,通过伸缩放麻架适应长麻秆放置要求,长度根据加工麻秆的长度确定,为最长麻秆长度的一半多一点。
夹持牵引分离机构6如图13、图14所示,由前挡麻杆6.1,后挡麻杆6.2,上夹持牵引体6.4,下夹持牵引体6.3组成,前挡麻杆6.1上端高出喂麻平台50mm左右,兼做喂入机构转动体的机架,用型材制造,后挡麻杆6.2圆柱形,上端与折秆支座侧立板1.1.1的前下角衔接,上夹持牵引体6.4和下夹持牵引体6.3均由夹持架,传动轮,托、压带轮,夹持带组成,上夹持牵引体6.4向后伸出,下夹带前端绕喂入轴传动轮1.3.3,上下轮轴错位配置,所有轮子根据夹持带的断面形状配做成槽轮,上下夹持带一正一反相互偶合,夹持带如图15、图16所示为双面锲形带,断面为W形,纵向中间三角形楔齿的上半部为断续结构,形成矩形锯齿,齿高5mm,齿长10mm,节距35mm,用钢丝或合同纤维做强力层,抗拉能力强,用天然橡胶或氯丁橡胶做纵向楔点齿,弹性好。
放麻平台7在机架上面铺上平板即成,配合伸缩放麻架使用。
将收割后去叶去梢的鲜麻秆放在机器上的放麻平台上,将麻秆理顺居中铺开,使麻秆依次靠拢喂入喂折圆盘即可完成皮骨分离,麻皮放在底座平板上,麻骨梭放在机前两侧。
说明书附图
图1
图2
图3
图4
图5
图6
图7
图8
图9
图10
图11
图12
图13
图14
图15
图16
摘自国家发明专利,发明人:赫焕丽,饶正良,陈楠,杨彦伟,李慧娟,李川江,申请号2201911047022.2,申请日2019.10.30
















