摘 要:用于整骨式剥皮机的夹持牵引分离机构,设置在喂入折秆机构的后下面,由上下夹持牵引体和前后挡麻秆组成。上下夹持牵引体为相互偶合的两个组件,均包括夹持架、夹持带,传动轮合托(压)带轮,上下夹持体的轮轴错开半个轴距安装,上夹持牵引体向后伸出,上夹持嗲前后驱动,下夹持带绕喂入轴,由喂入轴上的驱动轮驱动,前挡麻秆位于后挡麻秆的外侧,顶端高出喂麻台,后挡麻秆顶端与折秆支座侧立板的前下角衔接。用于麻类作物横向喂入,整皮整骨皮骨分离。
技术要点
1 .用于整骨是黄红麻剥皮机的夹持牵引分离机构,其特性是:所述的夹持牵引分离机构位于喂入折秆机构的后下面,由上下夹持体和前后挡麻秆组成,所述的上下夹持均包括夹持架、传动轮、托(压)轮夹持带,上下夹持体的轮轴错位半个轴距安装,上夹持体向后伸出,上夹持带前后轮驱动,下夹持带由装在喂入轴上的驱动轮驱动,上下夹持带相互偶合,所述前后挡麻秆设置在夹持牵体前端的左右两侧,后挡麻秆在前挡麻秆的内侧,顶端与折秆支座侧立板的前下角衔接,前挡麻秆顶端高出喂麻台。
2 .根据权利要求1所述的用于整骨式黄红麻剥皮机夹持牵引分离机构,其特性是:夹持带喂双面锲形带,断面为W形,中间三角锲齿的上半部为断续结构,形成矩形锯齿。
技术领域
本发明涉及一种农副产品收获加工机械,特别是一种用于黄红麻皮骨分离的机械设备。
背景技术
红麻是一种特殊的纤维资源,有着广泛的用途。但剥制劳动强度大,费工费时,手工剥皮每人每天仅能剥鲜皮50-100公斤,制约了生产的发展。
20世纪50年代中期我国即开始进行黄红麻动力剥皮机的研制工作,80年代我国曾研制出碎骨式和整骨式两种类型的黄红麻剥皮机,但由于剥皮工效不高或剥制质量较差,未能在生产上广泛推广应用。相比之下,碎骨式操作较简单,效率较高,因而普遍认为碎骨式前景较好,整骨式难以实现机械化。
《6HZB-150型黄红麻整骨剥皮机》(见中国麻业1983年01期)采用胶辊抽皮的方法,由机架,打击辊筒,胶辊、滑板,输送带,喂入罩壳、传动等七个部分组成,每小时剥鲜皮150 -250kg,操作复杂,效率低,麻皮紊乱。
近年来由中国农业科学院麻类研究所研制的《4HB-480型黄红麻剥皮机》(见中国农机化2010年第5期或ZL201120011151.9),通过大小压辊的碾压分离和剥皮滚筒的刮打去掉麻骨、叶、屑等,虽然生产效率较高,达到700kg/h),但麻骨被粉碎,鲜皮含骨率较高(11.691%)。
由此可见,研制出高效的整骨式剥皮机,将是突破性的技术进步。
发明内容
本发明的有益效果是:实现了横喂式整骨式的皮骨分离,消除了碎骨式剥皮机麻皮上碎骨的现象和对麻皮的损伤,降低了能源消耗(利用了麻皮韧性好,抗拉能力强,麻皮和麻骨靠形成层结合易分离的机械力学性质,避开了麻骨坚硬,碎骨功耗大的弊端),同时又利麻骨利用(如制碳)。
附图说明
图1是整机主视(侧立面)示意图,图2是整机俯视示意图,图3是整机左视(正立面)示意图。
图4是喂入折秆机构主视(侧立面剖视)示意图,图5是喂入折秆机构的俯视图。
图6是喂入折秆机构折秆支座主视(侧立面剖视图),图7是折秆支座俯视图
图8是喂入折秆机构摆动体主视(侧立面剖视)图,图9是摆动体俯视图
图10是喂入折秆机构转动体主视图,图11是转动体A-A剖视图
图12是动力及传动机构示意图
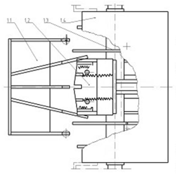
图13是夹持牵引分离机构主视(侧立面)示意图,图14是夹持牵引分离机构俯视(平面布置)示意图。
图15是夹持牵引分离机构夹持带主视(纵向侧立面)图,图16是夹持带A-A剖视(放大)图。
图中1为喂入拆秆机构,2为伸缩放麻架,3为传动机构,4为动力(电动机),5为机架,6为夹持牵引分离机构,7放麻平台。
1.1为折秆支座,1.2为摆动机构,1.3为转动体,1.4为安全罩;1.1.1折秆支座侧立板,1.1.2斜立板,1.1.3中立板,1.1.4底板,1.1.5后立板;1.2.1摆动体安装底板,1.2.2侧立板下联接板,1.2.3侧立板,1.2.4折秆刀,1.2.5压展板,1.2.6复位弹簧,1.2.7侧立板上联接板,1.2.8破秆刀,1.2.9滑槽板,1.2.10摇杆,1.2.11摇杆联接板,1.2.12销轴,1.2.13开口销;1.3.1转动体喂入轴,1.3.2凸轮,1.3.3下带传动轮,1.3.4喂折盘,1.3.5喂入盘;3.1喂入轴及下夹持带链传动,3.2减速分动箱,3.3上夹带中间链传,3.4上夹带前后链传动,3.5皮带传动;6.1前挡麻杆,6.2后挡麻杆,6.3下夹持牵引体,6.4上夹持牵引体。
具体实施方式
整机如图1、图2、图3所示,由喂入折秆机构1,伸缩放麻架2,传动机构3,动力(选用电动机)4,机架5,夹持牵引分离机构6,放麻平台7组成。喂入折秆机构1设置在机器的正前上方,夹持牵引分离机构6位于喂入折秆机构1的下后面,动力(电动机)4及传动机构3的减速分箱3.2位于机器的右下方。喂入折秆机构将麻秆中部剖开、折碎、分离、两端露出麻骨送入夹持牵引分离机构6,上夹持牵引体6.4和下夹持牵引体6.3夹持麻皮往后拉出,左右两侧的前挡麻杆6.1和后挡麻杆6 .2定位导向麻骨梭放在机器前端的左右两侧。
喂入折秆机构1如图4、图5所示,由折秆支座1.1,摆动体1.2,转动体1.3和安全罩1.4组成。折秆支座1.1如图6、图7所示,包括侧立板1.1.1,斜立板1.1.2,中立板1.1.3,侧立板1.1.1的前斜边较陡,前下角与夹持牵引分离机构6的后端挡麻杆6 .2衔接,斜立板1.1.2的前斜边较长与转动体1.3的喂折盘交叉重叠,中立板1.1.3斜边做有麻秆定位窝。摆动1.2如图8、图9所示,破秆刀1.2.8刀口对准麻秆轴线,中间开口破秆时越过中立板1.1.3,折
秆刀1.2.4位于中立板1.1.3和斜立板1.1.2之间的上前方,固定在破秆刀1.2.8上,压展板1.2.5对准斜立板1.1.2,弹性安装在破秆刀的两侧,转动体1.3如图10、图11所示,喂折盘1.3.4位于斜立板1.1.2的外侧,喂入盘1.3.5位于侧立板1.1.1的外侧,略小于喂折盘 1.3.4,左右两侧的喂入盘1.3.5喂折盘1.3.4拨齿的工作边在同一轴的平面,高度根据麻秆直径确定,与凸轮对称中心的夹角为90°,后缘与折麻支座1.1前斜边形成V形麻秆定位喂入口。安全罩1.4是个半圆筒。
伸缩放麻架2是置于机器上前方放麻平板7下的两个门形架子,工作时根据麻秆的长度向外拉出。
动力4及转动机构3如图12所示,选用普通电动机作动力。传动机构包括皮带传动3.5,减速分动箱3.2,以及喂入轴及下夹持带链传动3.1,上夹持带中间链传动3.3和上夹持带前后链传动3.4。减速分动箱3.2为齿轮减速反向。两根输出轴转速相同,转向相反,以满足喂入折秆机构转动体1.3,夹持牵引分离6上下夹持带转速及转向的要求。
机架5是用型材焊接而成的架子,框架结构,为了缩小机器外形尺寸,减少材料消耗,便于转移运输,平面布置成梯形,前宽1000左右,后宽300左右,通过伸缩放麻架适应长麻秆放置要求,长度根据加工麻秆的长度确定,为最长麻秆长度的一半多一点。
夹持牵引分离机构6如图13、图14所示,由前挡麻杆6.1,后挡麻杆6.2,上夹持牵引体6.4,下夹持牵引体6.3组成,前挡麻杆6.1上端高出喂麻平台50mm左右,兼做喂入机构转动体的机架,用型材制造,后挡麻杆6.2圆柱形,上端与折秆支座侧立板1.1.1的前下角衔接,上夹持牵引体6.4和下夹持牵引体6.3均由夹持架,传动轮,托、压带轮,夹持带组成,上夹持牵引体6.4向后伸出,下夹带前端绕喂入轴传动轮1.3.3,上下轮轴错位配置,所有轮子根据夹持带的断面形状配做成槽轮,上下夹持带一正一反相互偶合,夹持带如图15、图16所示为双面锲形带,断面为W形,纵向中间三角形楔齿的上半部为断续结构,形成矩形锯齿,齿高5mm,齿长10mm,节距35mm,用钢丝或合同纤维做强力层,抗拉能力强,用天然橡胶或氯丁橡胶做纵向楔点齿,弹性好。
放麻平台7在机架上面铺上平板即成,配合伸缩放麻架使用。
将收割后去叶去梢的鲜麻秆放在机器上的放麻平台上,将麻秆理顺居中铺开,使麻秆依次靠拢喂入喂折圆盘即可完成皮骨分离,麻皮放在底座平板上,麻骨梭放在机前两侧。
说明书附图
图1
图2
图3
图4
图5
图6
图7
图8
图9
图10
图11
图12
图13
图14
图15
图16
摘自国家发明专利,发明人:吴国利,正良,焕丽,兴旺,张泽民,申请号201911048252.0,申请日2019.10.30
















